Trilocale in vendita

Milano, Via Dei Valtorta - Turro
€ 419.000
3 locali 3 locali
105 Mq 105 Mq

Trilocale in vendita

Milano, Via Dei Valtorta - Turro

Descrizione annuncio

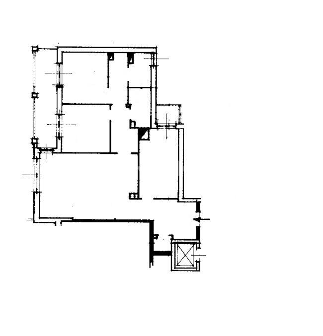
Via Valtorta 10- In bellissimo contesto degli anni 60, con ampio giardino condominiale e campi da tennis, sito al secondo piano con ascensore ampio Trilocale da personalizzare con ingresso su disimpegno, ripostiglio, cucina abitabile con balconcino, ampio soggiorno con accesso al terrazzino, cameretta camera matrimoniale doppi servi e vano ad uso cantina. A pochi passi da supermercati, banche, farmacie, bar, ristoranti, pizzerie e molti altri servizi che offre la zona. Comodo per raggiungere il centro con la linea rossa. Quanto vale la tua casa? Rivolgiti per una valutazione gratuita alla nostra agenzia affiliata Tecnocasa, i nostri professionisti sono a tua completa disposizione. Per qualsiasi informazione e/o per fissare un appuntamento senza impegno, contattare il nostro ufficio TECNOCASA STUDIO TURRO SAS di Viale Monza 149 al numero di telefono 02.84. 10.27. 20 oppure all'indirizzo mail. Presso la nostra agenzia, è possibile su richiesta, grazie ai nostri professionisti della Kiron (società di mediazione creditizia del gruppo), ricevere una consulenza gratuita ed accedere ad un'ampia gamma di prodotti creditizi e assicurativi come: - Mutui prima, seconda casa e ristrutturazione; -Sostituzione o Surroga del Mutuo; -Cessioni del Quinto dello Stipendio o Pensione; -Consolidamento Debiti; -Prodotti Assicurativi per la Famiglia, ramo Danni e Vita. Seguici anche su Facebook o su Instagram, clicca ''mi piace'' sulla pagina Tecnocasa Studio Turro. Ogni agenzia ha un proprio titolare ed è autonoma - Le presenti informazioni non costituiscono elemento contrattuale.

Mostra tutto

Nelle vicinanze

Trasporto pubblico Trasporto pubblico
Turro
Turro
180 m
Rovereto
Rovereto
450 m
stazione di Cimiano
stazione di Cimiano
1,5 Km
Milano Greco Pirelli
Milano Greco Pirelli
1,7 Km
Greco Rovereto
Greco Rovereto
670 m
Ricariche auto elettriche Ricariche auto elettriche
BeCharge Milano S. Rafael
1,0 Km
A2A Bicocca
1,6 Km
U2 Supermercato Milano Vallazze | EnelX
1,7 Km
LIDL Milano Viale Monza
1,8 Km
A2A Isola Digitale Piazza Argentina
1,8 Km
Scuole Scuole
Scuole
170 m
Scuola primaria e secondaria di primo grado "Casa del Sole"
370 m
Scuola secondaria di primo grado Rinaldi
440 m
Scuola primaria Russo-Pimentel
450 m
Scuola Primaria Venini
640 m
Farmacia Farmacia
Farmacia sociale
280 m
Farmacia comunale 35
480 m
Farmacia Bandi
500 m
Farmacia Europa
530 m
NaturHouse
670 m
Ospedali Ospedali
San Raffaele - Turro
650 m
Polo riabilitativo Istituto Gaetano Pini
940 m
Poliambulatorio di via Don Orione
1,2 Km
Istituto Clinico Città Studi
1,6 Km
Istituto Villa Marelli
2,2 Km
Supermercati Supermercati
Punto Simply
150 m
Ok Sigma
350 m
Carrefour Market
410 m
PennyMarket;Penny
620 m
Pam
720 m
Negozi Negozi
Cosmopolitan
160 m
Alimentari
210 m
Negozi
220 m
Pinoy Food
480 m
M.A.C. Alimentari
520 m
Bar Bar
Depot
60 m
Bar del 106
120 m
Traffic Lights
150 m
Il giardino della birra
200 m
Caffè Picchio
210 m
Ristoranti Ristoranti
Vecchio Aratro
100 m
Il Tegamino
110 m
Cala bianca
140 m
Circolo ARCI Martiri di Turro
220 m
Pizzeria Gemelli
230 m
Mostra tutto

Caratteristiche

Rif.:
61192860
Piano:
2 con ascensore (Piano medio)
Condizionamento:
Autonomo
Ascensore:
Riscaldamento:
Centralizzato
Giardino:
Condominiale
Mostra tutto
Prezzo Prezzo
€ 419.000
Rata mutuo Rata mutuo
€ 1.975 / mese
Spese annue Spese annue
€ 3.000
Proponi il tuo prezzoProponi il tuo prezzo

Classe Energetica

G
G
G
G
G
G
G
G
G
EP invernale del fabbricato:
EP estiva del fabbricato:
Anno di costruzione:
1970
Riscaldamento:
Centralizzato
Tipo impianto:
A radiatori
Tipo alimentazione:
Metano

Ti interessa visionare l'immobile?

Fissa un appuntamento  Fissa un appuntamento

Richiedi informazioni

Clicca su Leggi per aprire l'informativa
* Questi campi sono obbligatori

Calcola il tuo mutuo

Semplice e senza impegno
Anticipo

( % )
Mutuo

( % )

pochi semplici passi

inserisci i tuoi dati
Questionario completato
Grazie per aver richiesto un appuntamento senza impegno con un nostro Consulente del Credito e Assicurativo.

Hai inserito correttamente tutti i dati necessari e a breve riceverai una e-mail con un link da convalidare per inviare i tuoi dati.
Affiliato
Studio Turro Sas
Viale Monza, 149 20125 Milano (MI)

Il nostro staff


  • Donato Mazzeo
    Affiliato

  • Elia Moscatiello
    Collaboratore
Viale Monza, 149 20125 Milano (MI)
Zona: Viale Monza - Turro - Gorla
Mostra su mappa
Orari: da lunedì a venerdì 9.00/12.30-14.30/20.00; sabato 9.30/13.00; sabato pomeriggio e domenica su appuntamento
Affiliato
Studio Turro Sas
Viale Monza, 149 20125 Milano (MI)

2026 Tecnocasa Franchising S.p.A. - P. IVA 08365160152 - Via Monte Bianco 60/A 20089 Rozzano (MI). Ogni agenzia ha un proprio titolare ed è autonoma. Privacy policy | Policy utilizzo | Cookie policy